Z ostatniej chwili

Aktualności Gospodarka i inwestycje

Przebudowa sieci wodociągowej w ul. Chopina i Paderewskiego

sobota, 20 kwietnia 2024r.

W dniu 17 kwietnia 2024r. podpisana została umowa na przebudowę sieci wodociągowej w ul. Chopina i Paderewskiego w Pasłęku. Wykonawcą prac będzie Przedsiębiorstwo Usług Wodno-Kanalizacyjnych Sp. z o.o. w...

To jest bardzo dobra informacja

piątek, 19 kwietnia 2024r.

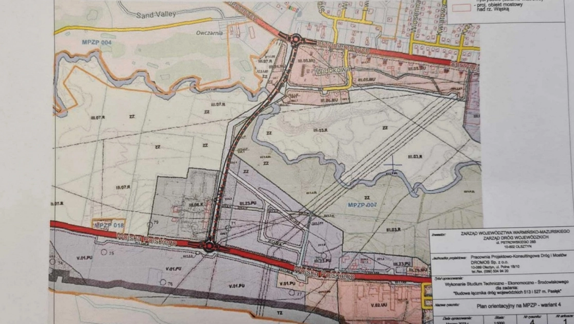
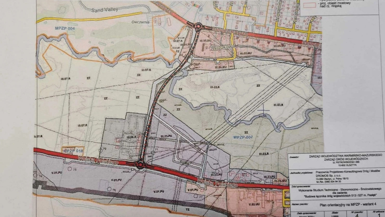
To jest informacja, na którą czekaliśmy od pewnego czasu. Starania o budowę łącznika między ulicą Sprzymierzonych i Wojska Polskiego będą miały szczęśliwy finał. Poniżej komunikat Zarządu Dróg Wojewódzkich w...

Historia pewnego ronda

piątek, 19 kwietnia 2024r.

W najbliższych dniach zakończone zostaną prace polegające na rozbudowie drogi wojewódzkiej nr 527 w zakresie przebudowy skrzyżowania ulic Bohaterów Westerplatte, ul. J. Piłsudskiego i ul. Strażackiej w m....

Układają asfalt

czwartek, 18 kwietnia 2024r.

Wczoraj w godzinach popołudniowych rozpoczęło się układanie masy asfaltowej na rondzie u zbiegu ulic Strażackiej, Boh. Westerplatte i Piłsudskiego. Układanie pierwszej warstwy trwało do godzin nocnych. Przy...

Remont dróg gminnych

środa, 17 kwietnia 2024r.

W ramach przeprowadzonego zapytania ofertowego na platformie zamówień publicznych Urzędu Miejskiego w Pasłęku dla zadania pn. Remont cząstkowy nawierzchni na drogach gminnych na terenie Gminy Pasłęk wybrany...

Nad rozlewiskiem bez zmian

poniedziałek, 15 kwietnia 2024r.

Nic się nie dzieje na rozlewisku przy drodze wojewódzkiej Krasin – Śliwica. Ustawiono znaki informujące o braku przejazdu i budowie. Ta maszyna budowlana w wodzie to czysty przypadek i nie ma ona związku z...

Przebudowa zakończona

niedziela, 14 kwietnia 2024r.

Zakończona został przebudowa skrzyżowania ulicy Kopernika z ulicą Jana Pawła II. Roboty prowadziła firma DB-GEO Daniel Bojarowski z Działdowa. Termin zakończenia prac ustalono na 31 maja 2024 roku. Okazuje...

Asfalt we wtorek

sobota, 13 kwietnia 2024r.

Wczoraj przedstawiciel firmy Flize Gres poinformował nas o terminie ułożenia nawierzchni asfaltowej na rondzie u zbiegu ulic Strażackiej, Boh. Westerplatte i Piłsudskiego. Ma to nastąpić we wtorek 16...

“Słoneczny prąd” popłynie w ZSEiT…

piątek, 05 kwietnia 2024r.

Już wkrótce, bo z końcem kwietnia bieżącego roku, zgodnie z przedłożonym przez wykonawcę harmonogramem, nastąpi kolejny etap osiągania niezależności energetycznej przez Zespół Szkół Ekonomicznych i...

Rzędy – chodnik i ścieżka za 3,5 mln

środa, 03 kwietnia 2024r.

Zarząd Dróg Wojewódzkich wycenił budowę ciągu pieszo – rowerowego w kierunku miejscowości Rzędy na kwotę 3,5 mln złotych. Do współfinansowania tej inwestycji wzdłuż drogi nr 527 zaproszona została gmina...

Listy – droga

środa, 03 kwietnia 2024r.

Szanowni Państwo, zwracam się z prośbą o nagłośnienie sprawy jednej z pasłęckich ulic. Ulica Morąska znajduje się w bliskim centrum naszego miasta na jednym z osiedli domków jednorodzinnych i jako jedyna...

Nowy termin i dodatkowe środki finansowe

poniedziałek, 01 kwietnia 2024r.

Zarząd Dróg Wojewódzkich odpowiedział na zapytanie burmistrza Pasłęka o termin zakończenia prac na rondzie u zbiegu ulic Strażackiej, Piłsudskiego i Boh. Westerplatte. Okazuje się, że wykonawca wystąpił o...

Kirkut pod nowym zarządem

poniedziałek, 01 kwietnia 2024r.

Związek Gmin Wyznaniowych Żydowskich w RP złożył wniosek do Komisji Regulacyjnej do Spraw Gmin Wyznaniowych Żydowskich o przeniesienie własności nieruchomości położonej w Pasłęku przy ul. Woj. Polskiego....

Drogi nasze kochane

poniedziałek, 01 kwietnia 2024r.

Wczoraj byłem ze świąteczną wizytą w Młynarach. Droga wojewódzka 505 na trasie Pasłęk – Młynary od lat sprawia problemy swojemu zarządcy. Po naciskach samorządowców wyremontowano odcinki w miejscowości...

Będzie ścieżka rowerowa

niedziela, 31 marca 2024r.

Jest szansa na powstanie ścieżki rowerowej z Pasłęka do Krosna. Ogłoszony został przetarg na wykonanie dokumentacji dla tej inwestycji. Ścieżka w zdłuż ulicy Woj. Polskiego będzie miała około 3,6 km długości...

Hala Sportowo-Widowiskowa w ZSEiT i nie tylko…

środa, 27 marca 2024r.

Dynamicznie przebiegają prace budowlane na posesji Zespołu Szkół Ekonomicznych i Technicznych w Pasłęku. Za kilka miesięcy będzie można podziwiać odmienione otoczenie placówki, ale również zmiany wewnątrz...

Cztery oferty na utrzymanie zieleni

wtorek, 26 marca 2024r.

Cztery oferty wpłynęły na przetarg dotyczący utrzymania zieleni na terenie Pasłęka. Do „zarobienia” jest kwota 1,188 mln złotych. Najtańszą ofertę złożyła firma PUK – 697 tys. zł. Kolejna oferta firmy Askin...

Trwa remont i termomodernizacja w Zespole Szkół

poniedziałek, 25 marca 2024r.

Trwa termomodernizacja wraz z rozbudową i przebudową budynków Zespołu Szkół w Pasłęku przy ulicy Zwycięstwa. Inwestycję realizuje Przedsiębiorstwo Budowlano-Montażowe Elzambud Sp. z o.o. z siedzibą w...

Wiatraki też się psują

poniedziałek, 25 marca 2024r.

Potężne dźwigi służące do montażu wiatraków pamiętamy sprzed kilku lat kiedy powstawały nasze farmy wiatrowe. W parku wiatrowym Krasin pojawił się taki dźwig ponownie. Uszkodzony jest jeden z wiatraków i...

Nowe urządzenia na placu zabaw

czwartek, 21 marca 2024r.

Na placu zabaw i boisku przy ulicy Kusocińskiego zainstalowano nowe urządzenia. Ustawiono nowe, bezpieczne tablice do gry w koszykówkę. Montowany jest również zestaw do rekreacji ruchowej. Zakup kolejnych...

Działka za 1,2 mln złotych

wtorek, 19 marca 2024r.

W dniu 14.03.2024 r. został przeprowadzony przetarg ustny nieograniczony na sprzedaż działki nr 30/54 o pow. 15243 m2, położonej w Pasłęku przy ulicy Szerokiej (wyjazd na Rogajny), przeznaczonej w miejscowym...

Droga redakcjo - listy

sobota, 16 marca 2024r.

Zwracam się z prośbą o nagłośnienie naszej sprawy. Ulica Dworcowa składa się z ulic asfaltowych i szutrowej. Droga szutrowa jest drogą gminną i obowiązkiem gminy jest zachowanie bezpieczeństwa na tej drodze....

Umowa na remont murów oporowych przy ul. Zamkowej

czwartek, 14 marca 2024r.

W dniu wczorajszym podpisano umowy z firmą: Milena Górska PPHU, ul. Berylowa 2, 82-300 Gronowo Górne na zadanie inwestycyjne pn.: Remont kamiennych murów oporowych przy ul. Zamkowej. Wartość umowną...

VIII KONGRES PRZYSZŁOŚCI

czwartek, 14 marca 2024r.

Jak zmienić śmieci w energię? Odpowiedzi poszukamy podczas VIII Kongresu Przyszłości! Zapraszamy na dyskusję na temat wykorzystania odpadów jako źródła energii podczas panelu "Od śmieci do atomu". Poznajcie...

Rozmowy nie było. Była demonstracja siły?

wtorek, 05 marca 2024r.

Zapowiadana rozmowa w gabinecie burmistrza, w której mieli brać udział panowie Janusz Wołoszyński (inwestor bimetanowni) i Jacek Kozikowski (właściciel firmy ENTC) nie doszła do skutku. Inwestor zjawił się...

22:18 13
Granty

Pewnie chodzi o "granty", ale pismaki wiedzą lepiej...

Akcja Granaty w sądzie
18:33 13
App

to ten trener nie widzi co jego syn odwala???!!!...

Pomóż Polonii
18:31 13
Bania

tych dwoch chlopakow ktorzy zostali przesunieci do...

Pomóż Polonii
16:53 13
Kania

Rodzina samego starosty przy budowie hali sportowej...

Akcja Granaty w sądzie
16:40 13
Kocur

A koty się cielą.

Elektrownia Fotowoltaiczna Kreki Sarna 1
15:36 13
Aezakmi

Krowy się nie niosą, tylko się kocą.

Elektrownia Fotowoltaiczna Kreki Sarna 1
15:30 13
STAROSTWO DO SPRAWDZENIA CBA

PRZETRZEPAC TYCH LOKATOROW STAROSTWA I POWIAZANIA...

Akcja Granaty w sądzie
Dziś: 0Wczoraj: 23więcej 84078
16:47
Nadawca

27.10.2o25 r o godzinie 10:16:58 nadałem paczkę o...

Problem z Pocztą Polską w Pasłęku
16:47
Nadawca

27.10.2o25 r o godzinie 10:16:58 nadałem paczkę o...

Problem z Pocztą Polską w Pasłęku
06:49
Ronin

Proszę o interwęcję Straży Miejskiej w Pasłeku...

Pali śmieciami i plastikami w ogrodzie
06:49
Ronin

Proszę o interwęcję Straży Miejskiej w Pasłeku...

Pali śmieciami i plastikami w ogrodzie
06:49
Ronin

Proszę o interwęcję Straży Miejskiej w Pasłeku...

Pali śmieciami i plastikami w ogrodzie
06:49
Ronin

Proszę o interwęcję Straży Miejskiej w Pasłeku...

Pali śmieciami i plastikami w ogrodzie
06:49
Ronin

Proszę o interwęcję Straży Miejskiej w Pasłeku...

Pali śmieciami i plastikami w ogrodzie
Pogoda

Pasłęk, Niedziela 14 grudnia

wiart: 6.81 m/s wilgotność 84% ciśnienie 1022 hPa zachmurzenie 100% opady deszczu 0.39 mm
Wschód: 07:53
Zachód: 15:18

PON

4° -

WT

3° -

ŚR

3° -

CZW

2° -

PT

2° -

SOB

2° -

Aktualności forum

Ogłoszenia

18 listopada Praca Praca
18 listopada Praca Praca
6 listopada Wynajmę kawalerkę Nieruchomości
29 października Drugi przetarg Nieruchomości
22 października Lokal do wynajęcia Nieruchomości
22 października Mieszkanie do wynajęcia Nieruchomości

Dodawanie ogłoszeń w kategoriach Nieruchomości, Praca, wiąże się z dodatkową opłatą. Pozostałe kategorie są darmowe.