Z ostatniej chwili

Aktualności Gospodarka i inwestycje

Zadania inwestycyjne powiatu

niedziela, 03 grudnia 2023r.

Dnia 30.11.br. Zarząd Powiatu w imieniu Powiatu Elbląskiego podpisał z przedstawicielami Braniewsko-Pasłęckiego Banku Spółdzielczego umowę na długoterminowy kredyt na łączną kwotę 7 mln zł z przeznaczeniem...

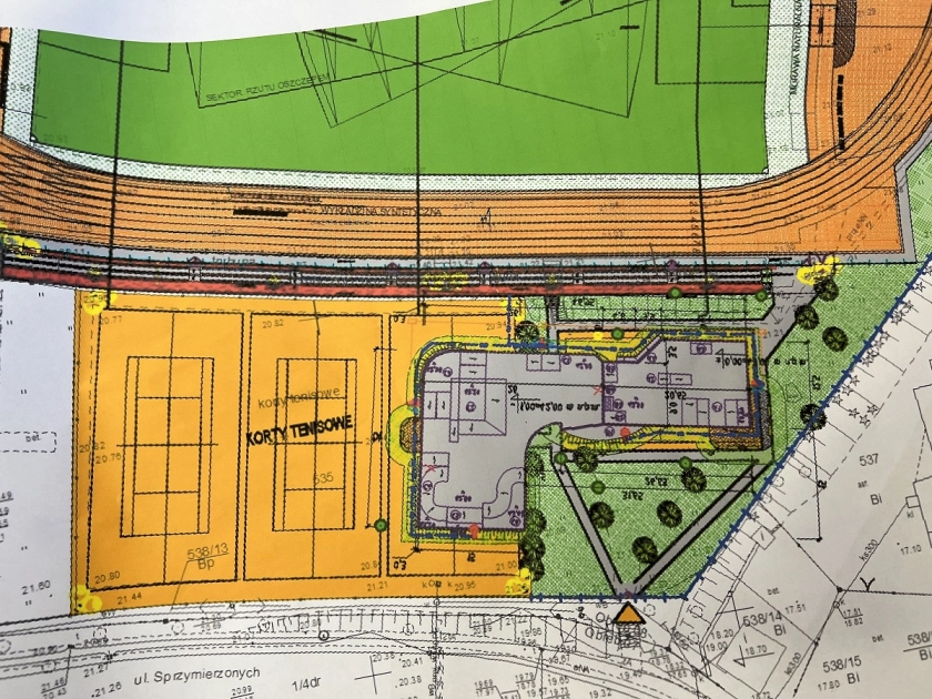
Zadanie pn. ”Budowa skatepark w Pasłęku”

niedziela, 26 listopada 2023r.

W dniu 24 listopada 2023r. podpisana została umowa z Firmą Remontowo- Budowlaną PRIMBUD Andrzej Filaszkiewicz z siedzibą w Nowej Wsi, która złożyła najkorzystniejszą ofertę na budowę skatepark w Pasłęku....

Przedwyborcza promesa

piątek, 24 listopada 2023r.

Trzy dni przed wyborami parlamentarnymi (12 października) były wiceminister a obecnie poseł ogłosił przed kamerami rządowej telewizji fakt przyznania gminie Pasłęk promesy wstępnej na modernizację placu...

Przebudowa skrzyżowania ulic Kopernika i Jana Pawła II

sobota, 18 listopada 2023r.

Pragniemy poinformować, że w dniu 17 listopada 2023r. podpisana została umowa z firmą: DB-GEO Daniel Bojarowski z siedzibą przy ul. Ludwika Rydygiera 1/7, 13-200 Działdowo na realizację zadania pn.:...

Firma Primbud wybuduje skatepark

czwartek, 16 listopada 2023r.

Rozstrzygnięto przetarg na budowę skateparku przy ul. Sprzymierzonych. Inwestycja będzie realizowana w przyszłym roku przez pasłęcką firmę Primbud za kwotę 1 192 000,00 zł. . Poniżej szczegółowe informacje...

Gmina z dotacją na remont kościoła i otoczenia dworca PKP

środa, 15 listopada 2023r.

Na początku października br. gmina Pasłęk otrzymała promesę wstępną na remont kościoła w Mariance. Kwota 1.281.541,35 zł z Rządowego Programu Odbudowy Zabytków ma być przeznaczona na konserwację elewacji...

Osińskiego i Steffena na finiszu

poniedziałek, 13 listopada 2023r.

Wielomiesięczny remont ulic Steffena i Osińskiego zbliża się do faktycznego końca. Odetchną wreszcie z ulgą mieszkańcy tych ulic i osoby korzystające z tej trasy w komunikacji ze śródmieściem. Obecnie trwają...

Kolumbarium – ekologia i oszczędność miejsca

niedziela, 12 listopada 2023r.

Pisałem już kilka razy o potrzebie budowy na pasłęckim cmentarzu komunalnym kolumbarium. Coraz więcej ludzi za życia wyraża wolę spalenia zwłok po śmierci. Ja też podjąłem taką decyzję. Póki co zdecydowana...

Dwie oferty w przetargu na skatepark

środa, 08 listopada 2023r.

W czwartym przetargu na budowę skateparku przy ul. Sprzymierzonych złożono dwie oferty. Przypominamy, że gmina przeznaczyła na realizację inwestycji kwotę 1 038 360,57 zł. Najbliżej tej kwoty jest oferta...

Termin nierealny

czwartek, 02 listopada 2023r.

Trwa remont skrzyżowania ulic Strażackiej, Boh. Westerplatte i Piłsudskiego. Tempo robót nie zadawala żadnej ze stron zainteresowanej szybkim zakończeniem inwestycji. Przypominamy, że inwestorem jest Zarząd...

Czwarty przetarg na skatepark

wtorek, 31 października 2023r.

Ogłoszono (19 października) czwarty przetarg na budowę skateparku. Poprzednie przetargi unieważniono z powodu znacznych przekroczeń w składanych ofertach. Gmina dysponuje kwotą 1.017.594,56 zł z Rządowego...

Nowa droga do pochylni Buczyniec

poniedziałek, 30 października 2023r.

Trwa remont drogi dojazdowej do pochylni Buczyniec. Inwestycja realizowana jest przez gminę Pasłęk na podstawie pełnomocnictwa udzielonego przez Związek Gmin i Powiatów Kanału Elbląskiego i Pojezierza...

Skrzyżowanie o ruchu okrężnym

niedziela, 29 października 2023r.

Mimo niesprzyjającej pogody udało się wczoraj położyć nową nawierzchnię asfaltową na skrzyżowaniu o ruchu okrężnym u zbiegu ulic Jagiełły, Mickiewicza i Kopernika. Do zakończenia prac na skrzyżowaniu...

Nowe stawki czynszu

czwartek, 26 października 2023r.

Rosną koszty utrzymania lokali mieszkalnych wchodzących w skład mieszkaniowego zasobu Miasta i Gminy Pasłęk. Ma to związek m.in. ze wzrostem kosztów usług i materiałów w budownictwie (o 60 %). Nowa stawka...

Społeczna Inicjatywa Mieszkaniowa – pierwsze budynki w 2024 roku

wtorek, 24 października 2023r.

Społeczna Inicjatywa Mieszkaniowa KZN – Warmia i Mazury spółka z o. o. do, której należy również gmina Pasłęk wybuduje w naszym mieście 18 budynków mieszkalnych. W dziesięciu budynkach będą mieszkania o...

1 listopada pójdziemy na cmentarz ul. Osińskiego i Steffena

poniedziałek, 23 października 2023r.

Jest taki plan, żeby w dniu 1 listopada uruchomić ciąg pieszy w przebiegu ulic Osińskiego i Steffena. Firma realizująca zadanie ma jeszcze do ułożenia kilkadziesiąt mb. jezdni i chodnika, ale jest szansa na...

Kolejna inwestycja kanalizacyjna

wtorek, 17 października 2023r.

Pragniemy poinformować, że w dniu 16 października 2023r. podpisana została umowa z firmą: Milena Górska Przedsiębiorstwo Produkcyjno Handlowo Usługowe z siedzibą przy ul. Berylowej 2B w Gronowie Górnym na...

Skup kukurydzy mokrej

niedziela, 15 października 2023r.

Nowe silosy firmy Wipasz znowu wypełniają się kukurydzą. Trwa właśnie skup kukurydzy mokrej, za którą firma płaci 450 zł (tona). Kukurydza jest surowcem do produkcji różnego rodzaju pasz dla zwierząt....

Lodowisko sezonowe

sobota, 14 października 2023r.

Dobiegają końca pertraktacje w sprawie uruchomienia w Pasłęku lodowiska sezonowego przykrytego halą namiotową. Inwestorem jest firma z południa Polski. Obiekt o powierzchni 600 m2 stanie na stadionie...

PKP wyremontuje dworzec w Pasłęku i Gronowie Elbląskim

środa, 11 października 2023r.

Polskie Koleje Państwowe S.A. zleciły firmie Maple sp. z o.o. z Katowic opracowanie dokumentacji projektowej dotyczącej kompleksowej przebudowy obu obiektów razem z otoczeniem. PKP sfinansuje remont obiektów...

Nowe alejki na cmentarzu komunalnym

wtorek, 10 października 2023r.

Firma TRAKT Waldemar Szyszka Spółka Jawna zakończyła budowę alejek na nowej części cmentarza komunalnego przy ul. A. Steffena. Zgodnie z umową wykonano w terminie i zgodnie z planem 712 m2 utwardzonej...

Zastosowanie pomp ciepła w kontekście świadectwa energetycznego

poniedziałek, 09 października 2023r.

W obliczu globalnych wyzwań związanych ze zmianami klimatu i rosnącą świadomością społeczeństwa na temat konieczności dbania o środowisko, coraz większy nacisk kładziony jest na efektywność energetyczną w...

Ile zapłacimy za wodę?

poniedziałek, 09 października 2023r.

Przedsiębiorstwo Usług Wodno – Kanalizacyjnych w Pasłęku – Jednostka Operatorska Sp. z o. o. stara się od pewnego czasu o zmianę taryf za zbiorowe zaopatrzenie w wodę i odprowadzanie ścieków na ternie miasta...

Steffena na finiszu

niedziela, 08 października 2023r.

Całkiem przyzwoicie prezentuje się ulica Augustyna Steffena w nowej szacie. Prace z układaniem nowej nawierzchni powoli, ale systematycznie przybliżają nas do zakończenia inwestycji. Jeszcze trochę a...

Lasy finansują remont drogi

piątek, 06 października 2023r.

Droga przebiegająca przez Kurowo Braniewskie przejdzie remont. Remontowana droga powiatowa łączy znajdujące się w powiecie elbląskim Młynary z powiatem braniewskim. Jest to ważny odcinek trasy, z którego...

22:18 13
Granty

Pewnie chodzi o "granty", ale pismaki wiedzą lepiej...

Akcja Granaty w sądzie
18:33 13
App

to ten trener nie widzi co jego syn odwala???!!!...

Pomóż Polonii
18:31 13
Bania

tych dwoch chlopakow ktorzy zostali przesunieci do...

Pomóż Polonii
16:53 13
Kania

Rodzina samego starosty przy budowie hali sportowej...

Akcja Granaty w sądzie
16:40 13
Kocur

A koty się cielą.

Elektrownia Fotowoltaiczna Kreki Sarna 1
15:36 13
Aezakmi

Krowy się nie niosą, tylko się kocą.

Elektrownia Fotowoltaiczna Kreki Sarna 1
15:30 13
STAROSTWO DO SPRAWDZENIA CBA

PRZETRZEPAC TYCH LOKATOROW STAROSTWA I POWIAZANIA...

Akcja Granaty w sądzie
Dziś: 0Wczoraj: 23więcej 84078
16:47
Nadawca

27.10.2o25 r o godzinie 10:16:58 nadałem paczkę o...

Problem z Pocztą Polską w Pasłęku
16:47
Nadawca

27.10.2o25 r o godzinie 10:16:58 nadałem paczkę o...

Problem z Pocztą Polską w Pasłęku
06:49
Ronin

Proszę o interwęcję Straży Miejskiej w Pasłeku...

Pali śmieciami i plastikami w ogrodzie
06:49
Ronin

Proszę o interwęcję Straży Miejskiej w Pasłeku...

Pali śmieciami i plastikami w ogrodzie
06:49
Ronin

Proszę o interwęcję Straży Miejskiej w Pasłeku...

Pali śmieciami i plastikami w ogrodzie
06:49
Ronin

Proszę o interwęcję Straży Miejskiej w Pasłeku...

Pali śmieciami i plastikami w ogrodzie
06:49
Ronin

Proszę o interwęcję Straży Miejskiej w Pasłeku...

Pali śmieciami i plastikami w ogrodzie
Pogoda

Pasłęk, Niedziela 14 grudnia

wiart: 6.81 m/s wilgotność 84% ciśnienie 1022 hPa zachmurzenie 100% opady deszczu 0.39 mm
Wschód: 07:53
Zachód: 15:18

PON

4° -

WT

3° -

ŚR

3° -

CZW

2° -

PT

2° -

SOB

2° -

Aktualności forum

Ogłoszenia

18 listopada Praca Praca
18 listopada Praca Praca
6 listopada Wynajmę kawalerkę Nieruchomości
29 października Drugi przetarg Nieruchomości
22 października Lokal do wynajęcia Nieruchomości
22 października Mieszkanie do wynajęcia Nieruchomości

Dodawanie ogłoszeń w kategoriach Nieruchomości, Praca, wiąże się z dodatkową opłatą. Pozostałe kategorie są darmowe.